Commercial Property For Sale   |   Alfreton Road, Nottingham, NG7 3NG   |    £3,900,000

Key Features

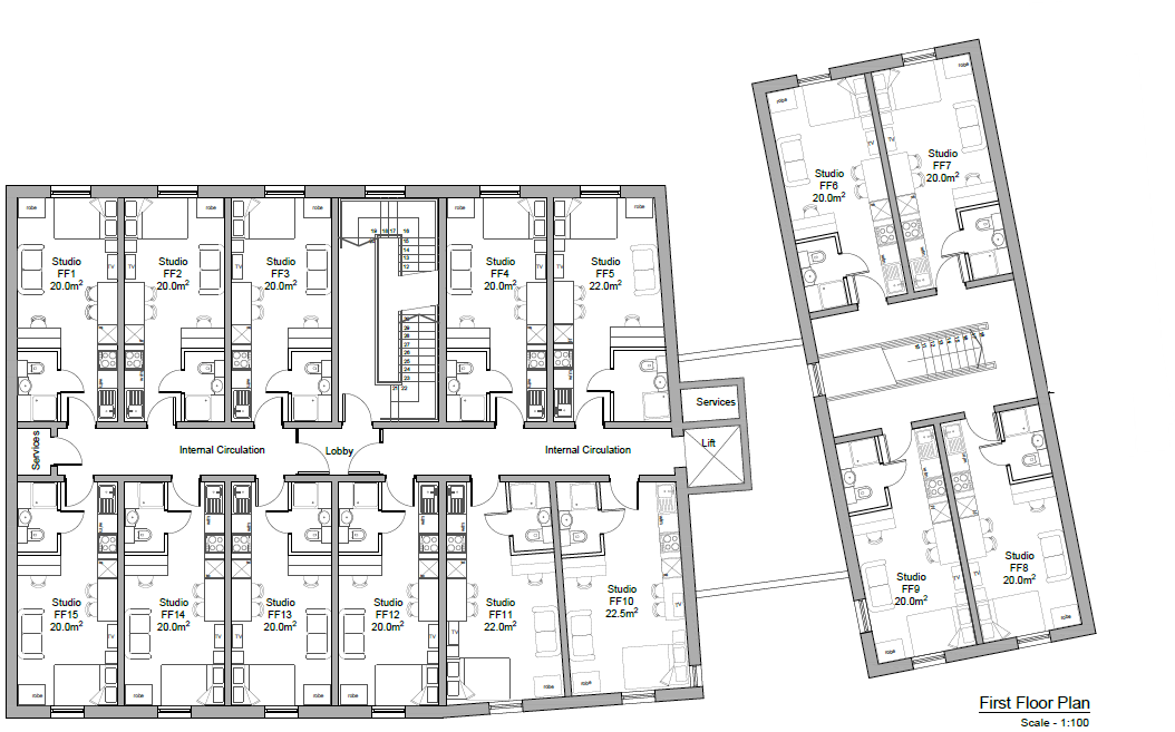
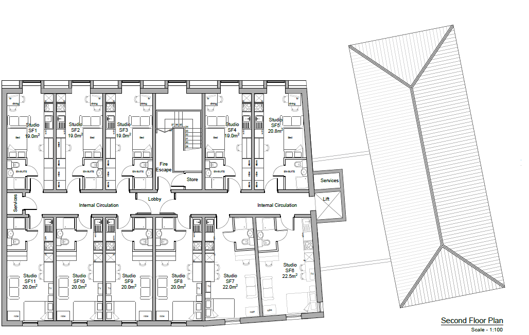
  • 35 Bedroom Modern Aparthotel
  • Prime Nottingham Canning Circus Spot
  • Fully Electronic Guest Service Model
  • Ground Floor Let Sans Patrie Restaurant
  • Managed by Third-party Operator
  • 9,687 sq ft Sole-owned Company Asset
  • Net profit c. £337,525 p.a.
  • Strong Demand from Mixed Clientele

Summary

Dwell City Living offers an exceptional investment opportunity in Nottingham's thriving hospitality market. This modern 35-bedroom apart-hotel has been purpose-built to meet the demands of both leisure and corporate guests, combining stylish accommodation with a fully electronic guest service system to create a seamless, technology-led visitor experience.

The ground floor is occupied by the well-established Sans Patrie Restaurant at £25,000 pa, a destination venue that adds vibrancy and enhances the visibility of the property. The apart-hotel itself is fully managed by an experienced third-party property management company, with all maintenance, housekeeping, and cleaning services outsourced and included within the management agreement. This arrangement creates a highly efficient and low-maintenance operational model, well-suited to investors seeking a hassle-free income stream.

Average daily room rates range from £55 to £99, with an additional £25 cleaning fee per stay. The business attracts a wide-ranging clientele, including students' families, corporate travellers, cultural visitors, and weekend leisure guests, all benefitting from the property's proximity to Nottingham city centre. After costs, the property generates a net profit of approximately £337,525 per annum.

This exceptional 35 room aparthotel represents a rare opportunity to acquire a high-performing hospitality asset in a prime location. Generating an impressive annual EBITDA of approximately £337,525, the property offers a strong net yield of 8.65% before purchaser's costs against the asking price of £3.9 million. With a gross turnover of circa £590,835 reflecting a robust gross yield of 15.15%, this investment combines consistent income generation with long-term growth potential.

The building extends to circa 9,687 sq ft (900 sq m) and is held within a single-asset company structure. Profits stated are adjusted for management charges to assist the operator but are not included in the transaction, offering a buyer the benefit of a clear and efficient acquisition.

Location

Situated prominently at 6 Alfreton Road, within the sought-after Canning Circus district, Dwell City Living enjoys an excellent location at the edge of Nottingham's central core. Guests have easy access to the city centre's retail, business, and cultural amenities, with major venues such as the Motorpoint Arena, Nottingham Playhouse, and Theatre Royal all within walking distance. Nottingham's two universities, both of which are global institutions with over 65,000 students combined, also sit within easy reach, ensuring year-round demand from visiting families, academics, and students alike.

The location benefits from Nottingham's excellent transport infrastructure, including a mainline railway station with direct services to London St Pancras in under two hours, a well-connected tram and bus network, and East Midlands Airport located just 14 miles away. The wider Canning Circus area is a thriving leisure and residential quarter, home to an attractive mix of independent restaurants, bars, and cultural spots, ensuring strong footfall and sustained appeal to guests

Additional Information

For further information on this property please call 01157342000 or e-mail enquiries@lester-bingley.co.uk

Contact Us

Unit 2A, Sherwood Oaks Close, Sherwood Oaks Business Park, Mansfield, NG18 4TB

01157342000

enquiries@lester-bingley.co.uk


Key Features

  • 35 Bedroom Modern Aparthotel
  • Fully Electronic Guest Service Model
  • Managed by Third-party Operator
  • Net profit c. £337,525 p.a.
  • Prime Nottingham Canning Circus Spot
  • Ground Floor Let Sans Patrie Restaurant
  • 9,687 sq ft Sole-owned Company Asset
  • Strong Demand from Mixed Clientele

Share this property

Property Search

Share this property