Student Accommodation For Sale   |   Radford Road, Nottingham, NG7 7EA   |   Offers in Region of £2,500,000

Key Features

  • Former Mill Premises
  • Student Development Opportunity
  • Planning Ref 23/02055/PFUL3
  • 71 Units with 136 Rooms
  • Full Planning Granted
  • Mix of Conversion and New Build
  • Section 106 will be dealt with upon sale

Summary

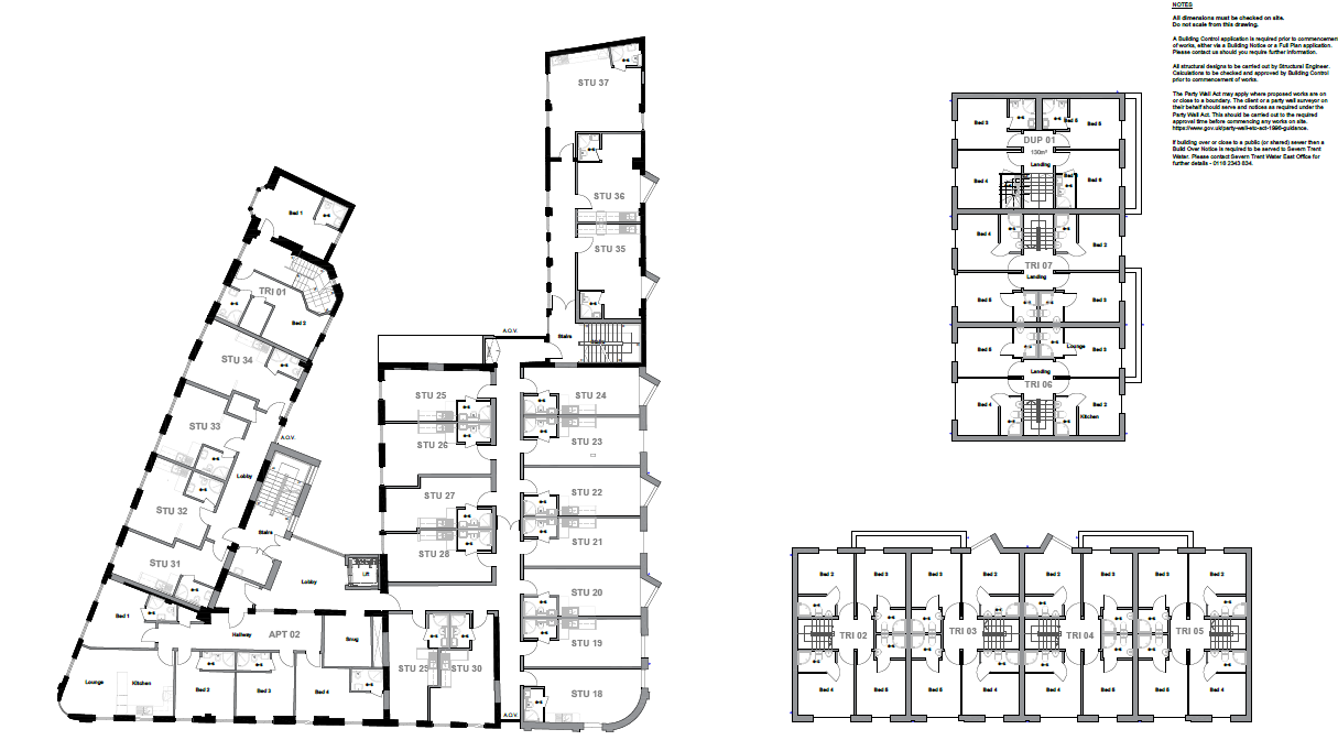
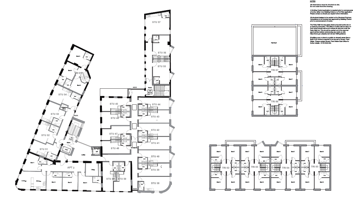
Substantial former commercial premises and site with Full Planning granted for conversion and new build to create 71 units with 136 rooms. Situated in a prime location being just 1.5 miles from the NTU City Campus, 2.5 miles from the University of Nottingham Jubilee Campus and3 miles from the Queens Medical Centre. A rare opportunity to acquire this prominent conversion/development opportunity with full planning enabling the purchaser to begin work immediately.

Based on the current planning the property will provide the following: Conversion and Extension of Mill
57 x studio rooms
3 x self-contained apartments
2 x 4 en-suite bedroom apartments
5 en-suite bedroom town house
New Build Development
6 en-suite bedroom duplex accommodation
6 x 9 en-suite bedroom town houses

Additional Information

For further information on this property please call 01157342000 or e-mail enquiries@lester-bingley.co.uk

Contact Us

Unit 2A, Sherwood Oaks Close, Sherwood Oaks Business Park, Mansfield, NG18 4TB

01157342000

enquiries@lester-bingley.co.uk


Key Features

  • Former Mill Premises
  • Planning Ref 23/02055/PFUL3
  • Full Planning Granted
  • Section 106 will be dealt with upon sale
  • Student Development Opportunity
  • 71 Units with 136 Rooms
  • Mix of Conversion and New Build

Share this property

Property Search

Share this property