Land For Sale   |   Booth Lane, Moston, Sandbach, CW11 3PY   |   Offers in Region of £675,000

Key Features

  • Freehold Development Land
  • Situated in Moston, Sanbach
  • Surrounded by a Wealth of New Housing
  • Full Planning for 11 no houses
  • Cheshire East Planning Ref: 25/0240/FUL
  • Idyllic and Affluent Location
  • 1 no 2 Bedroom & 1 no 3 Bedroom Cottages
  • 7 no 3 Bedroom Dwellings
  • 2 no 2 Bedroom Dwellings

Summary

Yew Tree Farm presents an exceptional freehold residential development opportunity located in the highly sought-after and affluent village of Moston, Sandbach. The site benefits from full planning permission (Cheshire East Planning Reference: 25/0240/FUL) for the construction of 11 high-quality dwellings, comprising:

Conversion of a Grade II Listed Building into:
- One two-bedroom cottage
- One three-bedroom cottage

New build dwellings including:
- Seven three-bedroom houses
- Two two-bedroom houses

This thoughtfully designed scheme sympathetically integrates modern new-build housing with the sensitive restoration of a charming listed building, creating a distinctive and characterful development in an idyllic semi-rural location.

The surrounding area is characterised by established residential development and open countryside, offering an attractive setting for families and professionals alike.

The scheme in detail provides:

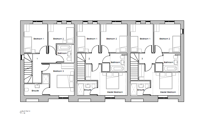
Plots 1-3:
A row of 3 bedroom houses to include ground floor open plan living with bi-fold doors leading out to the gardens providing kitchen, diner, living room and w/c. At first floor are 2 bedrooms, family bathroom and master with en-suite.

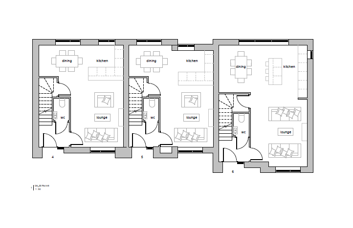
Plots 4-6:
A row of 2 x 2 bedroom houses and 1 x 3 bedroom house to include:
Plot 4 & 5 - Ground floor open plan living with patio doors leading out to the gardens providing kitchen, diner, living room and w/c. At first floor is a double bedroom, family bathroom and master with en-suite.
Plot 6- Ground floor open plan living with bi-fold doors leading out to the gardens providing kitchen, diner, living room and w/c. At first floor are 2 bedrooms, family bathroom and master with en-suite.

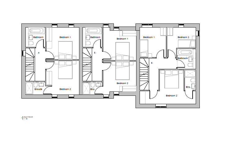
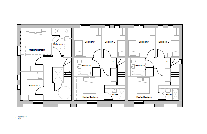
Plots 7-9:
A row of 3 bedroom houses to include:
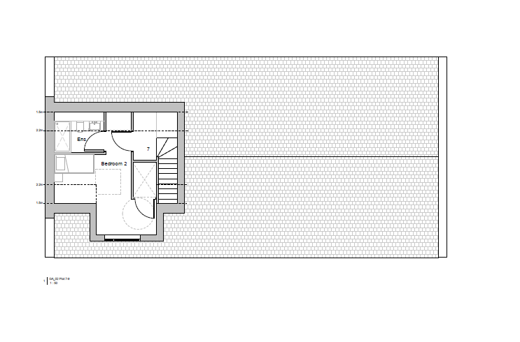
Plot 7 - Ground floor open plan living with bi-fold doors leading out to the gardens providing kitchen, diner, living room and w/c. At first floor is bedroom 1 & master leading to a jack and jill master bathroom. The loft offers bedroom 3 with en-suite.
Plot 8 & 9 - Ground floor open plan living with bi-fold doors leading out to the gardens providing kitchen, diner, living room and w/c. At first floor are 2 bedrooms, family bathroom and master with en-suite.

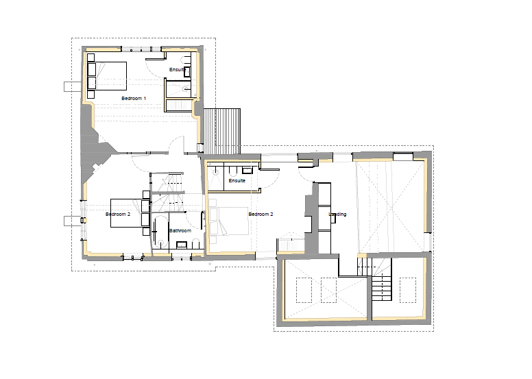
Yew Tree Farm House - Ground floor provides open plan living with bi-fold doors leading out to the gardens providing kitchen, diner, living room and w/c. At first floor is bedroom 1, family bathroom and master with en-suite. At second floor is bedroom 3 with a snug.

Yew Tree Cottage - Ground floor provides kitchen, open plan living room / diner, bedroom 1 and shower room. At first floor is the master bedroom with en-suite.

Location

Situated on Booth Lane in Moston, Yew Tree Farm enjoys an enviable position within the wider Sandbach area of Cheshire East. Sandbach is renowned for its historic charm, vibrant market town atmosphere and excellent connectivity.

- Transport Links: The site offers convenient access to major road networks, including the M6 (Junction 17), providing direct routes to Manchester, Liverpool, and Birmingham. Sandbach railway station offers regular services to Crewe and Manchester.
- Local Amenities: The area is well-served by an array of local shops, highly regarded schools, leisure facilities, and nearby open countryside, providing an appealing blend of town and rural living.
- Affluent Surroundings: The development is positioned within a thriving residential area that has seen significant growth, surrounded by other successful housing schemes which underpin the location"s desirability and demand.

Additional Information

For further information on this property please call 01157342000 or e-mail enquiries@lester-bingley.co.uk

Contact Us

Unit 2A, Sherwood Oaks Close, Sherwood Oaks Business Park, Mansfield, NG18 4TB

01157342000

enquiries@lester-bingley.co.uk


Key Features

  • Freehold Development Land
  • Surrounded by a Wealth of New Housing
  • Cheshire East Planning Ref: 25/0240/FUL
  • 1 no 2 Bedroom & 1 no 3 Bedroom Cottages
  • 2 no 2 Bedroom Dwellings
  • Situated in Moston, Sanbach
  • Full Planning for 11 no houses
  • Idyllic and Affluent Location
  • 7 no 3 Bedroom Dwellings

Share this property

Property Search

Share this property