Detached For Sale   |   Church Street, Pilsley, Chesterfield, S45 8EX   |   Offers in Region of £265,000

Key Features

  • Freehold former public house
  • Benefits from full planning to demolish
  • Planning for 10 x 1 bedroom apartments
  • May be suitable to variation in planning
  • Situated in the heart of Pilsley
  • Site area of circa 0.25 acres
  • Ideal opportunity for developers

Summary

Lester & Bingley are pleased to offer this detached former public house in the heart of Pilsley.

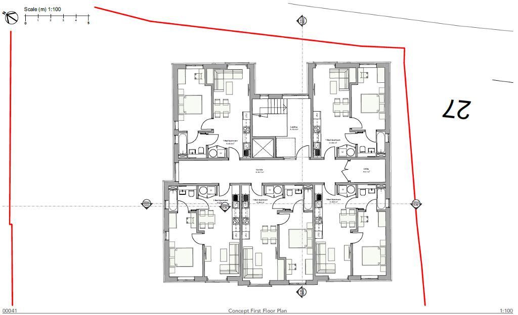
Boasting a site area of circa 0.25 acres this former public house benefits from full planning for the demolition of the existing property and the erection of 10 x 1 bedroom apartments and associated parking.

The scheme will boast 10 apartments comprising open plan kitchen/diner/living rooms, family bathrooms and a good sized double bedroom. Each apartment will be accessed off an entrance lobby with stairs ascending to each corridor. There will be 5 apartments on each floor of this two storey building.

Further information on the development along with all plans can be provided upon request.

Location

The subject property is situated in the heart of Pilsley, a short walk from the primary school and the local shops.

Pilsley is well located being just 7.5 miles from Chesterfield town centre, 9.5 miles from Mansfield town centre and 4.5 miles from junction 29 of the M1.

Additional Information

For further information on this property please call 01157342000 or e-mail enquiries@lester-bingley.co.uk

Contact Us

Unit 2A, Sherwood Oaks Close, Sherwood Oaks Business Park, Mansfield, NG18 4TB

01157342000

enquiries@lester-bingley.co.uk


Key Features

  • Freehold former public house
  • Planning for 10 x 1 bedroom apartments
  • Situated in the heart of Pilsley
  • Ideal opportunity for developers
  • Benefits from full planning to demolish
  • May be suitable to variation in planning
  • Site area of circa 0.25 acres

Share this property

Property Search

Share this property